| Projekt | Doppelhaushälfte Marquartstein |
| Ort | Marquartstein |
| BAUTRÄGER | Wohnlinie GmbH |
| BESONDERHEIT | KfW 40+ |
| PLANUNG | MH Mix & Hornberger Bau GmbH |
| FERTIGSTELLUNG | seit September 2023 |
| Kaufpreis | 995.000,00 € |
Dieses Objekt wurde bereits verkauft!
Schöne Doppelhaushälfte im Alpenvorland
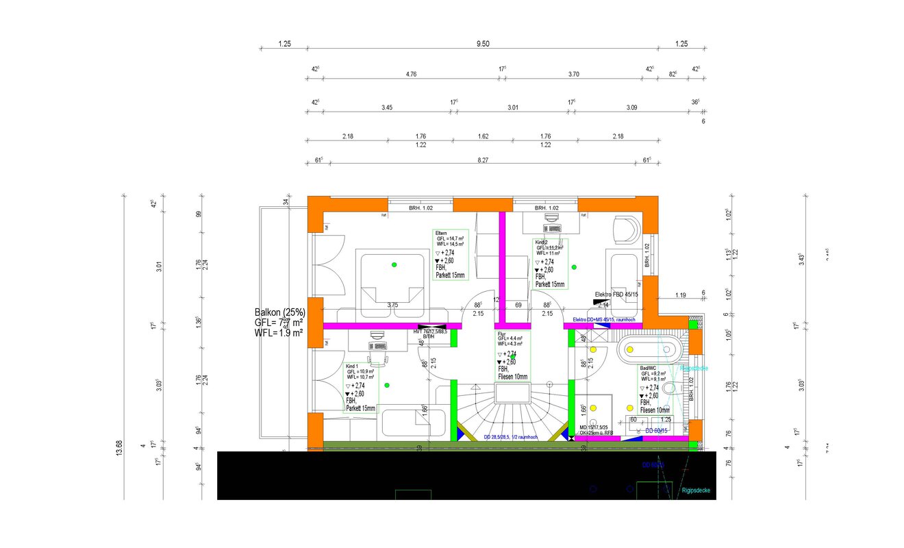
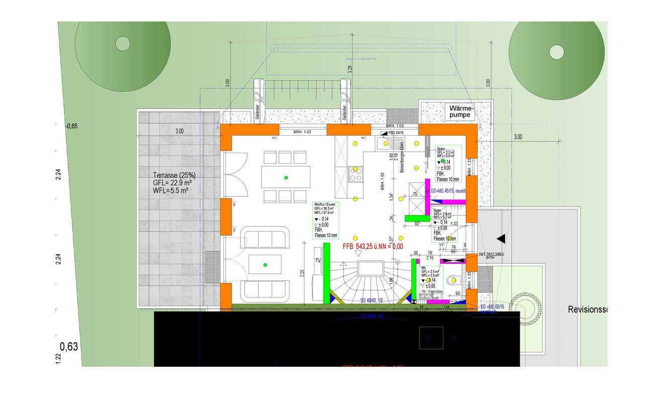
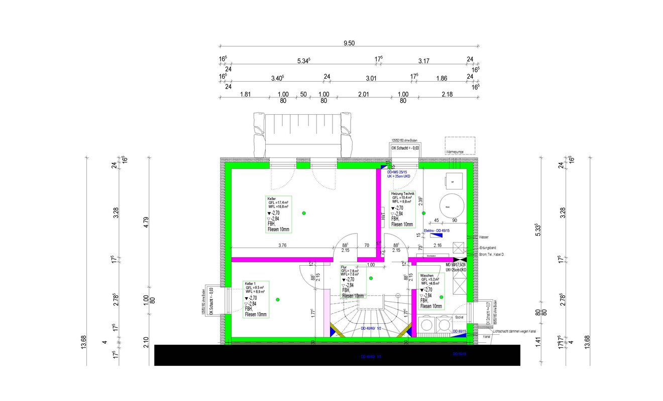
Umgeben von Bergen und Seeen erstreckt sich hier ein perfektes Zuhause für junge Familien. Die Doppelhaushälfte befindet sich im nördlichen Teil der Gemeinde Marquartstein mit einer Wohnfläche von ca. 123 m² und 5 Zimmern.
Eine Garage und auch Stellplätze sind auf einer Grundstücksfläche von ca. 310 m² vorhanden.